[go: up one dir, main page]

10 ideeën over DANCELIFE in 2026 | dansstudio, danszaal, kapsalon ideeën
Skip to content
Explore
When autocomplete results are available use up and down arrows to review and enter to select. Touch device users, explore by touch or with swipe gestures.

DANCELIFE

10 Pins
·
6d
Jahsaira VreedeJ
By
Jahsaira Vreede
Related searches
there is a woman sitting at the counter in front of some shirts and shorts on display

More about this Pin

Related interests

Pink And White Gym Decor
Pink Fitness Decor
Pink Ballet Studio
Fitness Boutique Interior Design
Pink Dance Studio
Bright Pink Gym Design
Pink Pole Studio
Modern Gym With Pink Lighting
Pink Neon Gym Decor
a white shelf filled with lots of pink and grey items on top of it's shelves

More about this Pin

Related interests

Pilates Organization
Girly Workout Room
Pink Workout Room
Minimalist Pink Workout Space
Yoga Bundle
Yoga Instructor Planner
Ballet Studio Design
Pink Gym Room
#спорт #растяжка #визуалспорт #визуалрозовый
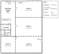
the floor plan for a two story house with an attached garage and living room area

More about this Pin

Related interests

Dance Studio Plan
Bloxburg Ballet Studio
Bloxburg Dance Studio
Dance Studio Ideas
Dance Studio Floor Plan Ideas
Modern Dance Studio Layout
Dance Studio Floor Plans
Dance Studio Layout Plan
Dance Studio Floor Plan
Our Studios | ALEXANDER'S SCHOOL OF DANCE AND THEATRE
the lockers are all pink and black in this empty room with no one inside

More about this Pin

Related interests

Ladies Locker Room
Gym Locker Room Design
Locker Room Design
Dark Locker Room Aesthetic
Pink Lockers For Gym
Changing Room Lockers
Modern Pink Locker Room
Modern Pink Locker Design
Three Door Locker Changing Room
a large wall covered in lots of different colored stickers and pictures next to a purple arrow

More about this Pin

Related interests

Dance Studio Inspiration
Dance Studio Design Ideas
Dream Dance Studio
Small Dance Studio
Dance Studio Design Interiors
Dance Studio Inspo
Dance Studio Visit Inspiration
Dance Award Display
#dance #dancelife #dancer #dancerlife #studio #ballerina #hiphop #love #jordan
there are many different colored shirts on the rack in this clothing store that is open

More about this Pin

Related interests

Dance Uniform
Dance Outfits Performance
Dance Competition Outfits
Dance Store Ideas
Foldable Ballet Barre In Studio
Yumiko Store Nyc
An extensive selection of leotards awaits you in our store! Can't make it? No worries, they're all available on our website : wearmoi.com
a snack bar with snacks and drinks on the shelves next to it is lit up

More about this Pin

Related interests

Movie Room Snack Bar
Bar Cabinet With Fridge
Snack Stand
Snack Station
Movie Room Decor
Coffee Snacks
Home Cinema Room
Snack Organizer
Candy Display
🍿【Dedicated Snack Storage Organizer】 Features multiple open shelves designed to neatly display and organize snacks, chips, cookies, and candy. Whether you're setting up a snack bar station for your movie nights or gaming room, this cabinet keeps your favorite treats always within reach 🧊【Fridge Space for Cold Drinks】 Built-in slot fits a mini fridge up to 19.7"W x 34.1"H, compatible with most popular brands. Ideal for storing sodas, juices, and water, this snack bar cabinet helps complete...
an empty dance studio with wooden floors and arches

More about this Pin

Related interests

Pilates Room
Ballet Barres
Home Dance Studio
Ballet Bar
Barre Studio
Ballet Studio
Home Dance
Diy Basement
Home Gym Design
Projects Archive - The Ballet Barre Company
an empty dance floor with purple lights in the center and mirrors on the wall behind it

More about this Pin

Related interests

Dance Studio Ideas Design
Dance Room Design
Dance Room Aesthetic
Dance Room Background
Dance Hall Aesthetic
Dance Studio Lobby Ideas
Dance Room
School Dance Room
an empty room with mirrors on the wall

More about this Pin

Related interests

Dance Practice Rooms
Dance Room Inspo
Dance Class Aesthetic Vision Board
Dance Room Ideas In House
Audition Room
Dancing Room Aesthetic
Dancing Room Design
Dance Room At Home